Curtain Langsir Slidingdoor Tingkap Victorianflower Eyelet Cakuk Dawai Shopee Malaysia
Ukuran Langsir Ok Lah Jom Kita Tengok Handmade By Zeemazanhuri فيسبوك
Langsir Siap Langsir 2 Panel Langsir 3 Panel Sliding Door Shopee Malaysia
Today Bahagia Kena Tahu Ukuran Langsir Sebelum Nak Beli Langsir
Ready Made Curtain For Door 2 Panels 3 Panels Sliding Door 140cm X 218cm Free Curtain Hook Lazada
Sila Pastikan Ukuran Bidai Dgn Tepat Azzahra Locker S Facebook
Kitaseorangpelajar Pasang Langsir Terengganu
Saiz Standard Tingkap Standard Parameter Tingkap Kaca Berlapis Dua Di Rumah Persendirian Lebar Struktur Di Panel Dan Di Khrushchev
Curtain Langsir Pakai Cakuk Eyelets Home Furniture Home Decor On Carousell
Sale 36 Color Curtain Langsir Kualiti Murah Cheap Hook Cangkuk Besi Ring Eyelet Shopee Malaysia
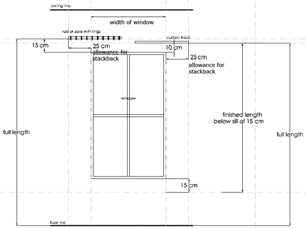
Moon Punyer Blog Bagaimana Nak Ukur Tingkap
Tip Professional Untuk Pilih Langsir Nampak Perfect Impiana
Turkey Day Curtain Langsir Siang Malam France Pleat Hook Grommet Top Ring H260cm Lazada
Langsir Biru Laut Carpet Queen
Bagaimana Mengganti Bingkai Tingkap Aluminium Tips Untuk Pembaikan Rumah Membuat Tangan Anda Sendiri 2020
Spesifikasi Sebenar Bomba Untuk Pemasangan Jeriji Grill Rumah Yang Jarang Kita Ikuti Iluminasi